Архитектурный проект дома 100 кв.м.

Архитектурный проект одноэтажного дома из блоков в современном стиле.. Особенности дома: оштукатуреный фасад в сочетании с отделкой металлосайдингом с имитацией дерева, вальмовая крыша, панорамное остекление со стороны выхода на террасу, возможность обустройства мансардного этажа. Место расположения - Севастополь.

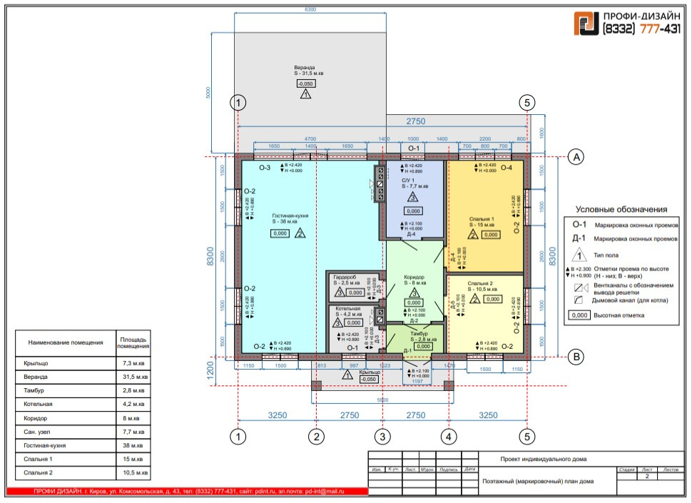
Общая площадь дома - 100 кв.м., жилая площадь - 86,2 кв.м.

16.10.2024
3_1_FFFFFFFF_EFEFEFFF_0_pageviews Архитектурный проект дома 100 кв.м.